CIUTADELLA
Descubra esta oportunidad excepcional en una de las calles más tranquilas y demandadas del centro histórico de Ciutadella de Menorca, a solo unos minutos caminando del puerto y de la esencia cultural de la ciudad. Esta casa adosada, con un proyecto de reforma integral ya proyectado, representa el equilibrio perfecto entre la autenticidad menorquina y el lujo del espacio exterior privado.
Un Proyecto Único: Diseño y Amplitud Exterior
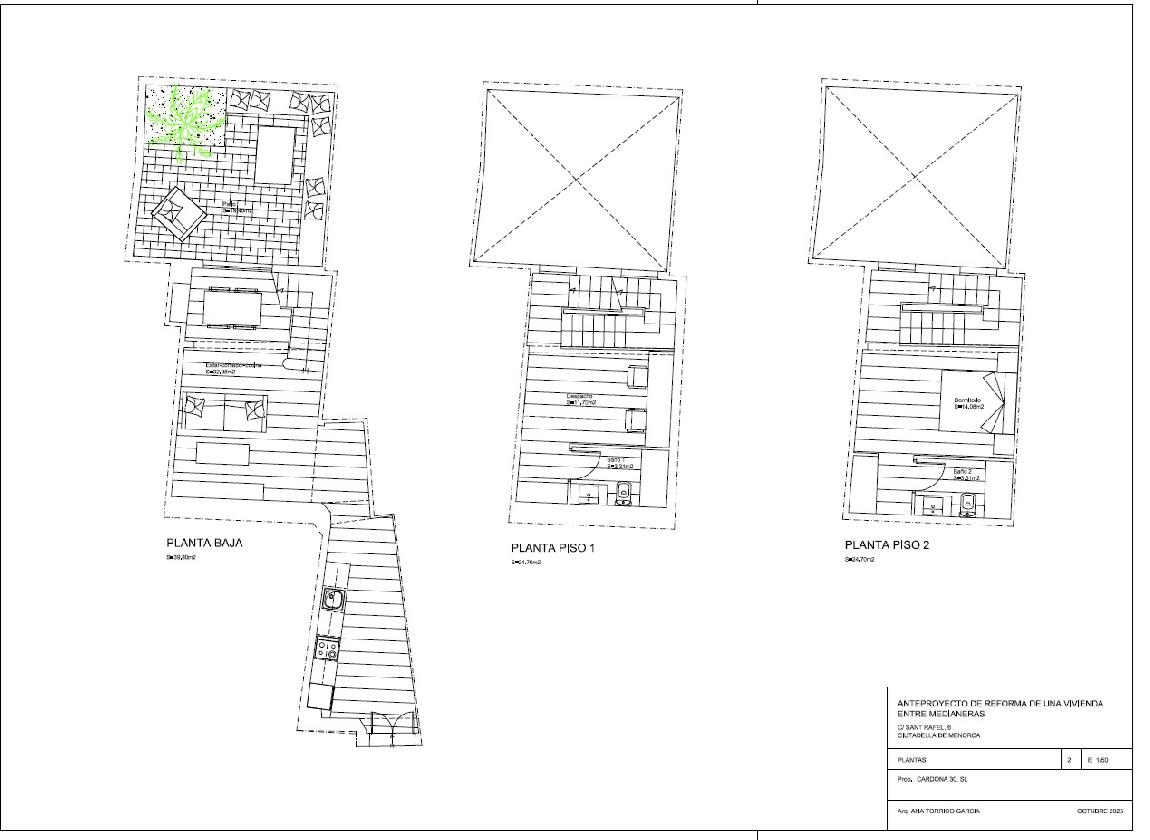
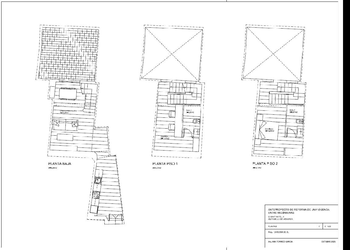
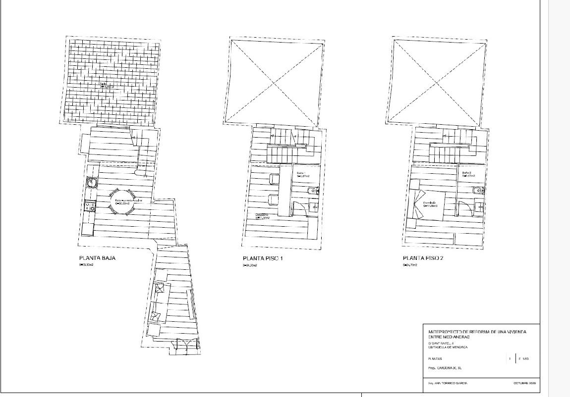
El valor diferencial de esta propiedad reside en su espectacular patio posterior, un espacio de generosas dimensiones (aprox. 5,90 m de fondo) proyectado para convertirse en un verdadero oasis mediterráneo. El anteproyecto transforma la vivienda en un hogar íntimo y funcional de tres plantas, donde cada rincón está optimizado:
Planta Baja (Espacio Social & Exterior): Diseñada para la vida en conexión con el patio. Cuenta con un salón-comedor-cocina integrado de 32,88 m², que se abre directamente al gran espacio exterior, duplicando la zona de disfrute en los meses de buen clima.
Planta Primera (Privacidad y Trabajo): Aloja un baño completo y una estancia polivalente, ideal como despacho profesional, estudio creativo o vestidor.
Planta Segunda (El Dormitorio): Un dormitorio principal tipo "loft" con su propio baño en suite, ofreciendo un refugio de descanso privado y silencioso.
Su Oportunidad de Inversión o Hogar a Medida
Esta propiedad es un lienzo en blanco para inversores que buscan un producto de diseño exclusivo en Menorca o para quienes sueñan con una casa con carácter, donde el patio es el verdadero protagonista. Una inversión inteligente que combina una ubicación prime con un concepto de vivienda altamente demandado.
No deje escapar la oportunidad de crear un hogar único donde el interior y el exterior se fusionan. Contacte con nuestro equipo para conocer todos los detalles del proyecto y coordinar una visita privada.
Descobriu aquesta oportunitat excepcional en un dels carrers més tranquils i cotitzats del centre històric de Ciutadella, Menorca, a pocs minuts a peu del port i del cor cultural de la ciutat. Aquesta casa adossada, amb un pla de reforma integral ja en marxa, troba l'equilibri perfecte entre l'autenticitat menorquina i el luxe d'un espai exterior privat.
Un projecte únic: disseny i espai exterior
La característica més destacada d'aquesta propietat és el seu espectacular pati posterior, un espai de generoses dimensions (aprox. 5,90 m de profunditat) dissenyat per convertir-se en un autèntic oasi mediterrani. El disseny preliminar transforma la propietat en una casa íntima i funcional de tres plantes, on cada racó està optimitzat:
Planta baixa (espai social i exterior): Dissenyada per viure en connexió amb el pati. Disposa d'una zona de saló-menjador-cuina integrada de 32,88 m², que s'obre directament a l'ampl espai exterior, duplicant la superfície habitable durant els mesos més càlids.
Primer pis (Privacitat i treball): Acull un bany complet i una sala polivalent, ideal com a despatx professional, estudi creatiu o vestidor.
Segon pis (El dormitori): Un dormitori principal d'estil loft amb bany privat, que ofereix un refugi privat i tranquil.
La vostra oportunitat d'inversió o casa a mida
Aquesta propietat és un llenç en blanc per a inversors que busquen una propietat de disseny exclusiu a Menorca o per a aquells que somien amb una casa amb caràcter, on el pati sigui el protagonista. Una inversió intel·ligent que combina una ubicació privilegiada amb un concepte d'habitatge molt demandat.
No perdeu l'oportunitat de crear una llar única on l'interior i l'exterior es fusionen a la perfecció. Contacteu amb el nostre equip per conèixer tots els detalls del projecte i concertar una visita privada.
Discover this exceptional opportunity on one of the quietest and most sought-after streets in the historic centre of Ciutadella, Menorca, just a few minutes’ walk from the harbour and the cultural heart of the town. This semi-detached house, with a comprehensive renovation plan already in place, strikes the perfect balance between Menorcan authenticity and the luxury of a private outdoor space.
A Unique Project: Design and Outdoor Space
The standout feature of this property is its spectacular rear courtyard, a generously sized space (approx. 5.90 m deep) designed to become a true Mediterranean oasis. The preliminary design transforms the property into an intimate and functional three-storey home, where every corner is optimised:
Ground Floor (Social & Outdoor Space): Designed for living in connection with the courtyard. It features an integrated 32.88 m² living-dining-kitchen area, which opens directly onto the large outdoor space, doubling the living area during the warmer months.
First Floor (Privacy and Work): Houses a full bathroom and a multi-purpose room, ideal as a professional office, creative studio or dressing room.
Second Floor (The Bedroom): A ‘loft-style’ master bedroom with its own en-suite bathroom, offering a private and peaceful retreat.
Your Investment Opportunity or Bespoke Home
This property is a blank canvas for investors seeking an exclusive design property in Menorca or for those dreaming of a home with character, where the courtyard takes centre stage. A smart investment combining a prime location with a highly sought-after living concept.
Don’t miss the chance to create a unique home where the indoors and outdoors blend seamlessly. Contact our team to find out all the details of the project and arrange a private viewing.
Découvrez cette opportunité exceptionnelle dans l'une des rues les plus calmes et les plus prisées du centre historique de Ciutadella de Minorque, à seulement quelques minutes à pied du port et du cœur culturel de la ville. Cette maison mitoyenne, pour laquelle un projet de rénovation complète a déjà été élaboré, incarne l'équilibre parfait entre l'authenticité minorquine et le luxe d'un espace extérieur privé.
Un projet unique : design et espace extérieur
La valeur ajoutée de cette propriété réside dans son spectaculaire patio arrière, un espace aux dimensions généreuses (environ 5,90 m de profondeur) conçu pour devenir une véritable oasis méditerranéenne. L'avant-projet transforme la maison en un foyer intime et fonctionnel de trois étages, où chaque recoin est optimisé :
Rez-de-chaussée (espace de vie et extérieur) : Conçu pour une vie en connexion avec le patio. Il dispose d'un salon-salle à manger-cuisine intégré de 32,88 m², qui s'ouvre directement sur le grand espace extérieur, doublant ainsi la surface de vie pendant les mois où il fait beau.
Premier étage (Intimité et travail) : Il abrite une salle de bains complète et une pièce polyvalente, idéale comme bureau professionnel, studio de création ou dressing.
Deuxième étage (La chambre) : Une chambre principale de type « loft » avec sa propre salle de bains attenante, offrant un havre de repos privé et silencieux.
Votre opportunité d'investissement ou de maison sur mesure
Cette propriété est une page blanche pour les investisseurs à la recherche d'un produit au design exclusif à Minorque ou pour ceux qui rêvent d'une maison de caractère, où le patio est le véritable protagoniste. Un investissement intelligent qui combine un emplacement de choix avec un concept d'habitation très recherché.
Ne manquez pas l'occasion de créer un foyer unique où l'intérieur et l'extérieur ne font qu'un. Contactez notre équipe pour connaître tous les détails du projet et organiser une visite privée.